Mailing List lml@lancaironline.net Message #44885
From:
Ian Crowe <ian.crowe@sympatico.ca>
Sender:
<marv@lancaironline.net>
Subject:
Emailing: scan0001.jpg, scan.JPG
Date:
Tue, 13 Nov 2007 17:02:56 -0500
To:
<lml@lancaironline.net>
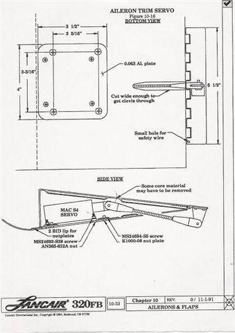
As per the request here are the details on the aileron trim. I have it fitted on my plane and it is a great help. Must be hard to fly without it if there is only the pilot on board.
Ian B. Crowe
LNC 2 C-FKRO
Attachment:
scan0001.jpg
(57K)
Attachment:
scan.JPG
(28K)
Subscribe (FEED)
Subscribe (DIGEST)
Subscribe (INDEX)
Unsubscribe
Mail to Listmaster