Mailing List flyrotary@lancaironline.net Message #28137
From: george lendich <lendich@optusnet.com.au>
Subject: Re: [FlyRotary] Center line of Renesis
Date: Sun, 4 Dec 2005 11:04:23 +1000
To: Rotary motors in aircraft <flyrotary@lancaironline.net>

Does anyone know where the center line of the E-shaft on the Renesis is in
relation to the oil pan bolts?

The oil pan bolts are on 11 7/8 inch centers(measuring across the width of
the engine).  Is the center of the E-shaft centered on these bolts?  Also
what is the height of the center of the E-shaft above the oil pan/engine
juncture?

I am working to build my own engine mount and need these measurements to
set
up the thrust line and offsets.

I am using the plate from Conversion Concepts, but Fred's illness
prevented
him from building the remainder of the mount in a timely manner.

So, I am now on my own.  Any suggestions greatly appreciated.

Thanks,
Bill Bradburry

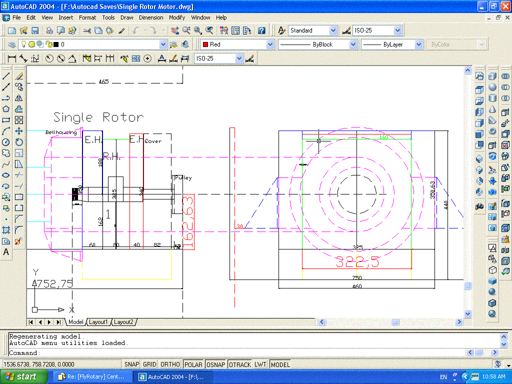
Bill,
I checked -160mm from bottom of motor to centre of e-shaft.
Pan holes150mm each side of e-shaft centre (approx). Your 11 7/8" x 25.4 =
301.6 - I got 301.5. However it is centre or close enough for your
application.

I have a rough drawings I did for my single rotor, sizing it for engine bay
fit, but it's a couple off mm out, that's why I checked.
Drawing attached!
George (down under)
Subscribe (FEED) Subscribe (DIGEST) Subscribe (INDEX) Unsubscribe Mail to Listmaster